|
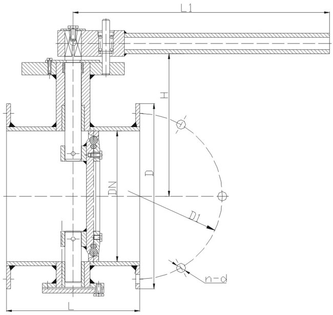
產品名稱:CB-1258 手柄通風蝶閥
產品口徑:
產品壓力:
產品材質:
|
CB-1258通風蝶閥 用途及特點CB-1258手柄通風蝶閥的主要結構特征為對夾式和法蘭式三偏心密封形式,閥座密封圈采用彈性密封和軟硬兼容的多層次密封兩種結構,其密封性能可靠,確保開啟時蝶板不接觸密封座,消除了密封座不均勻負載,延長了使用壽命,確保可靠的密封性能。具有耐高溫、耐磨損、耐腐蝕等優點。廣泛應用于石油、化工及船舶等管道上。 采用標準設計標準:CB-1258 法蘭連接尺寸:JIS B2212 JIS B2213 JIS B2214 結構長度:JIS B2002-1987 主要技術參數
主要零件的材質
標準相關下載: CB-1258手柄通風蝶閥.rar 進入下載地址列表 聲明: 浦首訂貨須知:(國家標準): |
|||||||||||||||||||||||||||||||||||||

關注官方微信