|
產品名稱:GHG雙筒雙聯過濾器
產品型號:GHG
產品口徑:DN50~DN200
產品壓力:
產品材質:鑄鋼、不銹鋼
產品口徑:DN50~DN200
產品壓力:
產品材質:鑄鋼、不銹鋼
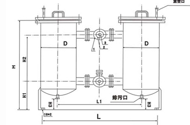
產品名稱:雙筒雙聯過濾器 產品型號:GHG 公稱通徑:DN50~DN200結構形式:雙過濾聯動工作壓力:1.6MPa~4.0連接方式:法蘭適用溫度:-20ºC~+450ºC功能作用
產品說明GHG雙筒雙聯過濾器采用兩個三通球閥,將兩個單筒過濾器組裝在一個共同機座上,相互切換使用,清洗過濾器不必停車,保證連續生產。雙筒雙聯過濾器的過濾元件,除采用不銹鋼泄芯外,亦可采有優質蜂房式脫脂纖維棉,可濾掉粒徑1μ以上的顆粒,本過濾器亦可單筒使用,此時只需去掉共同機座,其余尺寸不變。創新設計為了雙筒雙聯過濾器更加實用性,在總體結構設計上做了很大的改進,在過濾、排污、清洗、安裝、使用等領域得到更大技術突破。劍閥閥門克服了傳統過濾器的納污量小、過濾時容易受污物堵塞、濾芯在清洗拆卸慢等諸多缺點。在制造時將雙筒雙聯過濾器的濾體加大有有效解決納污量小的問題,采用流體從上往下流向結構設計有效解決雙筒雙聯過濾器在過濾的時候再也不會出現堵塞的現象問題,內部結構濾網才用提藍式結構、濾體封口上的螺栓采用吊環式可手動或手搖臂式快速裝卸裝置,可有效解決清洗拆卸慢的問題。結構特點1、過濾處理量大、體積美觀、容污量大、排污和清洗快捷。2、基于過濾系統的工作原理和結構,更換時方便快捷,而且過濾機免清洗,省工省時。 3、測漏機率小,有力的保證了過濾品質。 4、過濾可承載更大的工作壓力,壓損小,運行費用低,節能效果明顯。 5、過濾精度不斷提高,目前已已經達到0.5um。 6、過濾應用范圍廣,使用靈活,安裝方式多樣。 性能規范
外形結構圖![]() 主要外形尺寸
|
|||||||||||||||||||||||||||||||||||||||||||||||||||||||||||||||||||||||||||||||||||||||||||


關注官方微信