|
產品名稱:鉻鉬鋼閘閥
產品口徑:DN15~DN600
產品壓力:PN16-PN160
產品材質:鉻鉬鋼
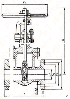
鉻鉬鋼閘閥,Z41Y法蘭閘閥最高溫度可達550攝氏度左右。為閥體鉻鉬鋼材質的楔式法蘭閘閥:可手動或配電動裝置、法蘭連接、明桿楔式剛性單閘板。閥座密封面材料為硬質合金,本廠生產能力范圍:壓力1.6MPa~16.0MPa(PN16I~PN160I);口徑:DN15~DN600。 鉻鉬鋼閘閥,高溫鉻鉬鋼閘閥實物圖片
主要性能參數
產品各部件材料表:
Z41Y鉻鉬鋼閘閥外形及結構尺寸:
|


關注官方微信